Tanganani Development - Brand New R 725 450 3 beds 1 bath

R725,450
Property Details
4588 Mogwale Crescent

NEW Property for sale in Tanganani. Attorney and bond costs INCLUDED.

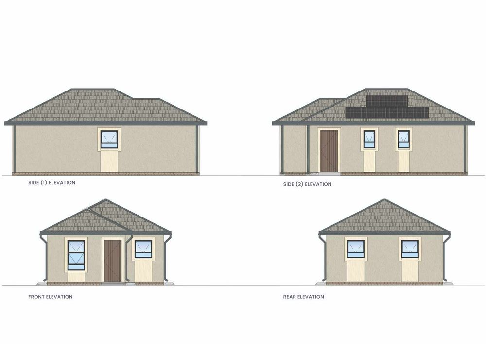
Perfectly situated off Winnie Mandela Drive, close to Sandton & Fourways. Raft foundations and semi face brick plinth. Offering Aluminium window frames. Hipped Roof and concrete roof tiles.

property has 3 bedrooms and a separate bathroom with a bath and basin. Separate toilet.

Lovely open plan living area onto a kitchen with a sink cupboard, 4 plate free standing stove/oven combo.

Solar powered geyser, lighting and cell phone back up charger.

  • Tanganani is a Development in City of Johannesburg and excellently located close to Sandton and Fourways, on Winnie Mandela Drive
  • Ideally situated on Winnie Mandela Drive, within close proximity to N14 highway between Pretoria and Krugersdorp, as well as the N1 Western Bypass
  • Close to Diepsloot Mall, Bambanani Shopping Centre, Makro Riversands and many malls and shopping centres in Fourways
  • On major taxi routes to Johannesburg, Sandton, Randburg, Fourways, Midrand, Centurion and Tembisa
  • There are 2 filling stations very close to the development on Winnie Mandela Drive
  • Numerous public and private schools in Diepsloot, Riverside View, Sandton, Randburg, Midrand and Fourways
  • Hospitals, Clinics and Medical Centres are situated close by in Diepsloot, Midrand, Fourways, Sandton and Fourways
Property Features
Property Type
House
Bedrooms
3
Bathrooms
1
Floor Size
56m²
Land Size
205m²
Living Area
1
Costs and Terms
Rates & Taxes
±R600
Location
On Show
Sunday, 02 Nov 2025
10:00 - 17:00
N14 take R511 , Off Winnie Mandela Drive
Sunday, 09 Nov 2025
10:00 - 17:00
N14 take R511 , Off Winnie Mandela Drive
Sunday, 16 Nov 2025
10:00 - 17:00
N14 take R511 , Off Winnie Mandela Drive
Sunday, 23 Nov 2025
10:00 - 17:00
N14 take R511 , Off Winnie Mandela Drive
Sunday, 30 Nov 2025
10:00 - 17:00
N14 take R511 , Off Winnie Mandela Drive
Sunday, 07 Dec 2025
10:00 - 17:00
N14 take R511 , Off Winnie Mandela Drive
Sunday, 14 Dec 2025
10:00 - 17:00
N14 take R511 , Off Winnie Mandela Drive
Sunday, 21 Dec 2025
10:00 - 17:00
N14 take R511 , Off Winnie Mandela Drive
Make an enquiry
Interested in this property? Please fill in your details below, and we will contact you as soon as possible.
By clicking on "submit" you agree to our privacy policy.
Property Alerts
Receive email alerts for properties matching your criteria.
You may also be interested in these properties
R 690,300
House for sale in Tanganani
On Show
Video Tour
Virtual Tour
Development
Tanganani Johannesburg North- R 690 300 Brand New Home
Property in Tanganani: 2 bedrooms, 1 bathroom, 52 m² floor size, 201 m² land size. Bond costs included.
2
1
52m²
201m²
R 629,400
House for sale in Tanganani
On Show
Development
New Development Tanganani – R 629 400 Two Beds, 1 Bath
Property in Tanganani: 2 bedrooms, 1 bathroom, 45 m² floor size, 179 m² land size. Attorney and bond costs included.
2
1
45m²
179m²
R 664,400
House for sale in Tanganani
On Show
Development
Tanganani Brand New - R 664 400, 2 Beds, 1 Bath
Property in Tanganani: 2 bedrooms, 1 bathroom, 52 m² floor size, 179 m² land size. Attorney and bond costs included.
2
1
52m²
179m²